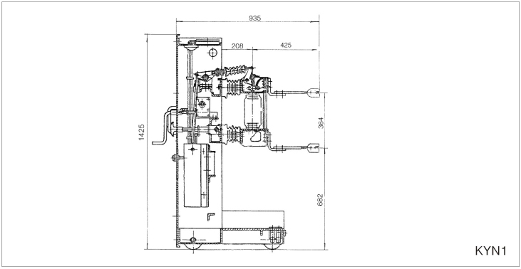
KYN1-12kV手车式真空断路器

更新:2020-09-19 09:51:36      点击:
  • 品牌:   
  • 型号:   
  • 在线订购
产品介绍