ZN28A-12, ZN28-12G series of indoor high voltage vacuum circuit breaker
First, an overview
ZN28A-12 series vacuum circuit breakers for rated voltage of 12kV, three-phase AC 50Hz indoor high voltage switch equipment. The products conform to the standards of GB1984-89, the overall structure of the product for the switch body and actuator for various installation and the switch body and actuator to install the separation of two types of, the integrated structure that is basic ZN28-12; split structure is ZN28A-12 applicable in a variety of fixed type switch cabinet, such as GG-1A (z), XGN2A10 (z).
Two, the main technical parameters
Item unit parameter
Rated voltage 25KA 31.5KA 40KA 20KA
1 rated voltage KV
2 rated current (A) A 1600
Two thousand and five hundred
Three thousand one hundred and fifty
3 rated short circuit breaking current KA 202531.540
4 of the rated short circuit switching current (peak) KA 506380100
5 rated peak withstand current KA 506380100
6 4S rated short-time withstand current KV 202531.540
7 rated absolute
Edge of the level of power frequency withstand voltage (rated open after opening) KV 42 (fracture 48)
Impact withstand voltage (rated open) 75 (fracture 85)
8 rated operating sequence points... 0.3s... 180s...
9 mechanical life time 10000
10 rated short-circuit breaking current number of times 3020 times
The 11 actuator rated switching voltage (DC) V 110220220
The 12 actuator rated switching current (DC) A 71128
13 operating mechanism rated switching voltage (DC) V 110220
14 operating mechanism rated current (DC) 3.0,1.5 A
15 contact distance mm 11 + 1
16 super stroke (contact spring compression length) mm 4 + 1
17 phase or different period of less than 2 ms
18 contact bounce time of MS is less than or equal to 2
19 average brake speed (just 6mm high) m/s 0.3 + 1.2
20 the average closing speed m/s s0.6 + 0.2
The 21 gate time highest operating voltage is less than 0.06 S
Minimum operating voltage is less than or equal to 0.08
22 closing time is less than 0.2 S
23 the main loop resistance is less than or equal to 40 mu omega = 20
24 the static and dynamic contact allows the wear and tear accumulation thickness mm 3
25 oil buffer buffer stroke mm 10
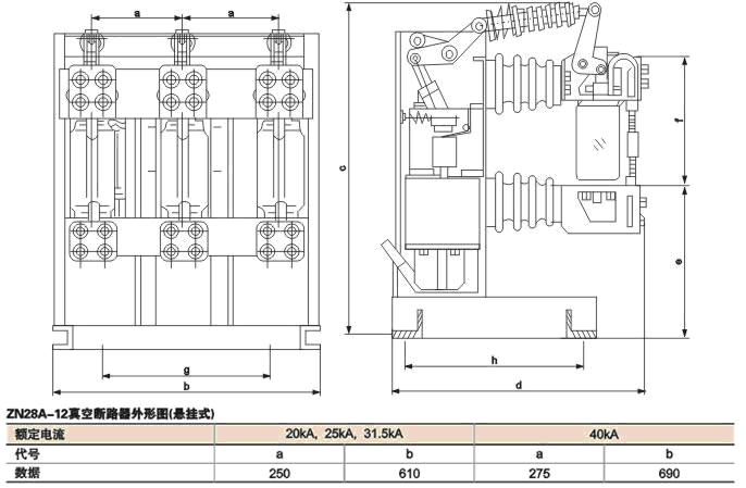
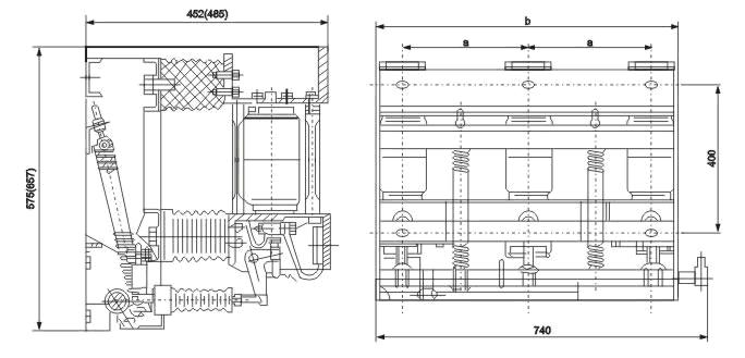
Three, outline mounting dimensions



