KYN61-40.5KV switchgear (hereinafter referred to as the "switch") and its main features are in the cabinet with ZN85-40.5 type new type insulation vacuum interrupter and spring operating mechanism, the cabinet body made of galvanized steel assembled, improve the matching precision of the cart and the cabinet, hand push the bus pulled out of the ten light, strong interchangeability of the products. For the 35kV 50Hz JN three-phase AC power system, as power plants, electrical distribution room and industrial and mining enterprises to accept, with control and distribution of electric energy, protection and monitoring function. This equipment complies with the national standard GB 3906-2020《Alternating-current metal-enclosed switchgear and controlgear for rated voltages from 3.6 kV to 40.5 kV》and IEC 62271-200《High-voltage switchgear and controlgear – Part 200: Alternating-current metal-enclosed switchgear and controlgear for rated voltages above 1 kV and up to and including 52 kV》.
Symbolic meaning
Conditions of use
1 altitude: no more than 2000 meters;
2 ambient temperature: the upper limit is +40, the lower limit is -15;
3 relative humidity: daily average value is less than 95% and the average monthly value is not more than 90%;
4 earthquake intensity: no more than 8 degrees;
5 there is no danger of fire and explosion, no severe vibration and chemical corrosion and severely punish the dirty place.
product mix
1 hand car room
1.1 good car, cabinet sliding grounding device, to ensure the safety of personal and equipment;
Metal safety protection valve 1.2 light and flexible, with open and closed car import and locked in place;
1.3 hand car out of the screw into the body, lightweight, flexible;
1.4 can be achieved when the door is closed, the door of the hand truck to carry out normal propulsion, draw out and to the circuit breaker, ground switch normal, sub operation, to ensure personal safety;
1.5 a mechanical locking device with a strict prevention operation is arranged between the circuit breaker, the hand cart and the swing mechanism.
2 hand car room
2.1 with the closed capacity of the grounding switch, the use of bevel gear drive, the operation and self - locking performance is good;
2.2 cabinet can import cable, can be realized on top of the overhead line import;
2.3 the installation height of the cable head is above 850mm;
2.4 can be added to the user's requirements of lightning arrester.
3 busbar room
3.1 using rectangular cross section or tubular insulated busbar;
3.2 adjacent cabinets is separated by a wall bushing, limiting the fault arc spreading, to avoid the accident;
3.3 busbar joint sets of SMC material to strengthen the level of insulation between the busbar and make it more reliable.
Two 4 meter room
4.1 the internal use of mesh type mounting plate, easy to install and replace various types of relays;
4.2 can use the integrated microcomputer to protect the equipment to realize the remote control system (background) control.
Two 5 plugs (block)
Handcart and a cabinet body between the auxiliary circuit connecting wire is arranged on the handcart plugs and installed on the socket body through, the cart is pushed into the test position will plug, the auxiliary circuit will be put into operation. Hand car back to the test location when the plug and unplug, the handcart can continue to pull to the outside of the cabinet, the plug socket with the handcart with interlocking device.
6 hand car
6.1 the truck frame is made of high-quality steel plate bending welding and, according to use, the truck can be divided into circuit breaker handcart, fuse, isolation handcart, voltage transformer hand trolley and arrester handcart, circuit breaker using domestic zn85-40.5 3AV3 of vacuum breaker and the French Schneider SF1, SF2 and Alston FP series hexafluoride sulphur circuit breaker device, with beautiful appearance, small volume, high operation reliability, long life and so on, the screw propulsion mechanism, energy balance and self-locking performance.
6.2 ZN85-40.5 (3AV3) circuit breaker characteristics
The 6.2.1 circuit breaker adopts the arc extinguishing chamber on the upper and the operating mechanism in the whole arrangement of the structure, which is beneficial for debugging;
6.2.2 uses air and organic composite insulation structure, the design is compact and light weight;
6.2.3 can be equipped with the United States Cutler-Hammer company, SIEMENS and domestic vacuum arc extinguishing chamber, three kinds of arc extinguishing chamber can use the cup longitudinal magnetic field arc, low closure, non symmetrical breaking performance is good, can meet the needs of different users;
6.2.4 simple spring operating mechanism, mechanical life 10000 times;
6.2.5 large distance insulation insulation design, the inner wall of the insulation tube for the umbrella skirt structure, operating performance under the condition of pollution is stable and reliable.
Characteristics of 6.3 SF2 type six sulfur fluoride circuit breaker
6.3.1 arc extinguishing copper gas in a one-time sealed, no need to run halfway inflation;
The annual leakage rate of 6.3.2 six sulfur fluoride gas is less than 0.1%;
6.3.3 mechanical life 10000 times, the performance is stable and reliable.
6.3.4 is especially suitable for the switched capacitor banks.
Five switch cabinet "7 anti" interlocking
7.1 to prevent load pull cart, the breaker handcart only in work, test or removed position can be done, closing operation. Circuit breaker is only in the closing position, the trolley can be from work position to remove or from the test position to promote, reliable prevent hand cart with load;
7.2 to prevent misuse, circuit breaker, grounding switch closing subsequent car rolled into the hole mechanism of valve unlock to the VCB truck from the test position is pushed into the working position; after the circuit breaker closing, shaking into institutions hole of the valve can not be opened, by mistake is prevented, misclassification error circuit breaker;
7.3 to prevent mistakenly charged spacing, switch cabinet after cabinet door adopts mechanical and electrical interlocking, only when the grounding switch is closed, and after cabinet corresponding devices have a power outage, open after the electromagnetic lock to open the door. Prevent the staff strayed into the charged interval;
When out of the switch cabinet handcart, static contact box outside the metal valve automatically shut down, to prevent contact with the contact box live parts and insulation (creepage) surface, to ensure safety.
7.4 prevent switch cabinet charged misconnecting earthed switch, only the truck pulled into the test position, and the outlet side also have a power outage, the grounding switch operating hole of the valve to open, allow off the grounding switch is closed;
7.5 prevented the grounding switch is closed when the miscarriage of the electricity, the earthing switch in the closed position, hand car beam on the grounding switch is connected locking rod can not be right toggle, handcart shaking mechanism hole valve is locked, the truck don't roll into and prevent when the grounding switch is closed and the miscarriage of the electricity.
7.6 does not install the grounding switch the circuit breaker cabinet and bus sectional cabinet and bus equipment cabinet, also need to be locked by the corresponding electromagnetic program (or lock) with the completion of all anti misoperation function, the user may reference KYN61-40.5 armoured removing type metal closed switch equipment interlock operating instructions for operation.
7.7 hand car only when the test position can be inserted or pulled out two times the plug, the hand car in the work place two times the plug is locked.
8 storage and transportation
8.1 check the package before unpacking the box after the nondestructive inspection, random data and accessories host is intact;
8.2 switch cabinets should be stored in clean and dry place without chemical corrosion, long-term storage should be in the transmission part of the lubrication oil, and regularly check the environment is in line with the requirements.
9 installed base form
9.1 the installation of switchgear shall be in accordance with the relevant provisions of the "electric power construction and acceptance technical specification";
9.2 installation foundation see schematic diagram, the frame installation of the allowable deviation for each meter is not more than 1mm (for the next outlet).
10 general requirements for the installation of switchgear
10.1 specific transportation vehicles such as crane, forklift, prohibited the use of roller crowbar;
10.2 take the car from the switch cabinet and put it somewhere else to keep it safe;
10.3 if a row of switch cabinet is longer, the cabinet should start from the middle;
10.4 in the cabinet after cleaning will promote the wire rod, bearings and mechanical rotating parts are coated with a clean industrial Vaseline or lubricating oil, handcart arranged in corresponding cabinet, check the reliability of the dynamic and static contact the depth of engagement and interlocked operation, the dynamic and static contact insertion depth for 40 + 0 / 2 mm.
11 switch cabinet grounding device
11.1 use a pre prepared connection to connect all the cabinets together;
11.2 in the switch cabinet to connect all the required grounding wire;
11.3 will have a reliable grounding of the basic frame and ground connection.
12 random file list
12.1 product qualification certificate
12.2 packing list
12.3 factory inspection report
12.4 installation instructions
12.5 switch cabinet interlocking operation instructions
12.6 stochastic spare parts and accessories list
Two one, the 12.7 wiring diagram
12.8 base it related information
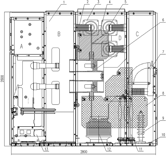
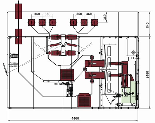
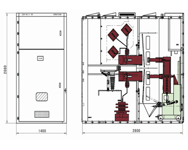
Schematic diagram of internal structure


KYN61-40.5KV switch cabinet internal structure diagram



