First, an overview
1, use
The switch cabinet is mainly used in underground coal mines without gas, the rated frequency 50Hz, rated voltage of 10kV or 6kV, rated current up to 1250A neutral point ungrounded or via arc suppression coil grounding of power supply system for measurement, control and protection. To achieve the power of receive and dispatch.
This equipment complies with the national standard GB 3906-2020《Alternating-current metal-enclosed switchgear and controlgear for rated voltages from 3.6 kV to 40.5 kV》and IEC 62271-200《High-voltage switchgear and controlgear – Part 200: Alternating-current metal-enclosed switchgear and controlgear for rated voltages above 1 kV and up to and including 52 kV》
2, product classification
2.1 product model meaning
2.2 product type
2.2.1 switch cabinet for mine general type, marked as "KY".
The 2.2.2 main switch is used for vacuum circuit breaker.
2.2.3 AC metal closed hand vehicle type structure.
2.2.4 a line program for the 20, can achieve power supply into the line, feed out, contact, control of high-voltage motors, transformers, reactors, voltage measurement and electric melting compensation and other functions.
Two, the main technical parameters
A. rated voltage: 6KV, 10KV
B. rated current: 50A, 100A, 150A, 200A, 315A, 400A, 500A, 630A, 800A, 1000A,, 1250A,
C. rated frequency: 50Hz
D. rated short circuit breaking current (RMS):31.5KA
E. rated short-circuit current (effective value):80KA
Three, technical requirements
3.1 normal working conditions of switch cabinet
A. ambient temperature: - 5 C ~ +40 c;
B. elevation is not more than 1000m;
C. ambient air relative humidity is greater than 25 (95% C);
D. coal mine with a mixture of methane and other gases;
E. where there is no significant shake and shock vibration;
F. can prevent dripping places;
The g. level is not more than 15 degrees.
3.2 switch cabinet with safe and reliable mechanical and electrical chain, ensure:
In the closing state of A. circuit breaker, isolating switch can not operate;
B. hand car door open, the circuit breaker immediately tripping;
C. hand car pulled out, the cabinet charged parts of the insulation board.
3.3 the rated insulation level is shown in Table 1
3.4 switch cabinet according to different uses can be properly selected configuration leakage, insulation monitoring, under voltage, over current, short circuit and other protective devices.
3.4.1 overload protection action value according to the current transformer two rated current value (0.2,0.3,0.4,0.5,0.6,0.7,0.8,0.9,1.0) 5A times the grading adjustment, the setting error is not more than 10%, its anti time limit protection characteristics should comply with the provisions of Table 2.
3.4.2 short circuit protection of the action current according to the current transformer two rated current value (1,2,3,4,5,6,7,8,9) of the 5A times the grading adjustment error is not more than 10%, in the 1.2 times the value of the whole set value, short circuit protection action time is less than 0.1s.
3.4.3 earth leakage (earth) protection for zero sequence power direction, the protection of the characteristics of Table 3
The action characteristic of 3.4.4 insulation monitoring is shown in Table 4
Four, electrical principle and product structure
4.1 electrical principle:
When the 10kV or 6kV) power supply connected to the busbar compartment, by isolating the bolt connected to zero sequence voltage transformer, secondary output three-phase 100V for comprehensive protection device and circuit breaker points driving power supply (see electrical schematic diagram 1). In case of voltage loss of power supply, circuit breaker failure pressure release is released, thereby locking circuit breaker with don't switch on.
When the operation of the switch cabinet and matched ZLZB-7A (T) high-voltage complex protection device of the circuit short circuit, overload, leakage protection. And display of power grid voltage, current and working state. See PIR - II high-voltage complex protection device specification.
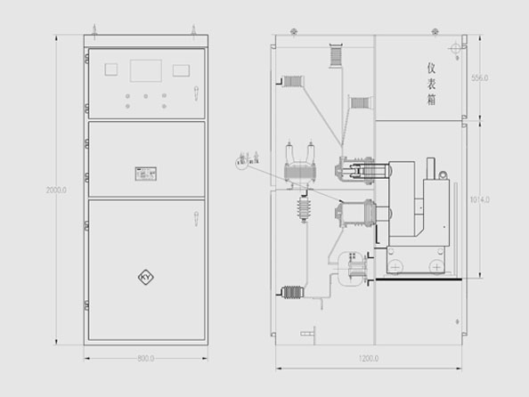
The structure of 4.2 cabinet:
Switch cabinet by fixed cabinet and the withdrawable part (namely the hand car) is composed of two parts. Cabinet shell and the separator are made of steel plate. Protection grade IP21, the cabinet with cable inlet and outlet and about contact function. Switch cabinet is partition separated into handcart room, bus room, room, cable, relay protection room, cabinet design and grounding. Above the front door for instrument room, below for handcart type breaker chamber. The upper part of the rear door for bus and voltage transformer room, below for cable import and line and current transformer room. (see Figure 2)
4.3 product debugging
4.3.1 action characteristic test: according to the specification "closing, the branch" brake test and the voltage fluctuation test, the test results all normal party may carry on the following experiment.
4.3.2 to protect the characteristics of debugging, according to the product rated operating voltage, current, according to the comprehensive protection specification for parameter setting.
4.3.2.1 over current protection, if the rated current of the products for Ih:300A, overload tuning for 1 times IH. According to the wiring diagram of (2) the terminal row access current transformer JA1 something (or ja2) of the second terminal of withdrawal and other access test current (provided by the test bed). Current transformer ratio Ih/5A. to 2Ih test current (2 * 5A = 10a), quite a 600A. from hot start given 10a, the protector should be in 20 seconds.
Be sent short circuit protection, according to the wiring will protect circuit breaker protection action value setting for 3Ih, circuit breaker closing state, current test rose to 1.2 times setting action value, namely (1.2 * 3 * 5A=18A), the protector should be in less than or equal to 0.1 seconds of action.
4.3.2.3 leakage protection
If the factory does not have power direction test-bed, available zero sequence current method appearance test. According to the requirements of integrated protection manual, leakage protection setting in "zero sequence current mode and current action 3a. Then will test current line penetration of the zero sequence current transformer is a side. When the current is adjusted to 3A + 10%, protector should reliable action.
Five, transportation and storage
Switch cabinet in the course of transport and storage note the following points:
A. are not allowed to tilt, invert and suffer from severe vibration, to prevent near the fire source;
B. should prevent rain to avoid damp;
C. are not allowed to disassemble the product and spare parts.
Six, complete sets of products to provide the following documents:
A. product qualification certificate;
B. product packing list;
C. products factory test report;
D. product specification;
E. factory packing list;
F. two wiring diagram;
G. ex factory products are supplied according to the catalogue and equipment list.
Seven, ordering instructions
The following information should be provided when ordering:
A. main wiring scheme number and single line system diagram, arrangement diagram, and plan;
B. users to provide two functional diagram, terminal arrangement, if the terminal layout should be arranged according to manufacturer;
C. switch cabinet type of electrical components, specifications, quantity;
D. electrical equipment summary table;
E. bus bridge (two row cabinet between bus bridge and bus bridge between StorWall) is required to provide the span and height dimensions;
F. switch cabinet used in special environmental conditions should be put forward when ordering;
The g. requires other or special attachments to be presented in a variety of types and quantities;
H. needs to be designed by our company for the user and the design reference.



