1 scope of application
KYN18-10KV (8BK20) switch cabinet is suitable for three-phase AC 50Hz power system, which is used for receiving and distributing electric energy and control circuit, protection and monitoring.
This equipment complies with the national standard GB 3906-2020《Alternating-current metal-enclosed switchgear and controlgear for rated voltages from 3.6 kV to 40.5 kV》and IEC 62271-200《High-voltage switchgear and controlgear – Part 200: Alternating-current metal-enclosed switchgear and controlgear for rated voltages above 1 kV and up to and including 52 kV》
2 model meaning
3 structural characteristics
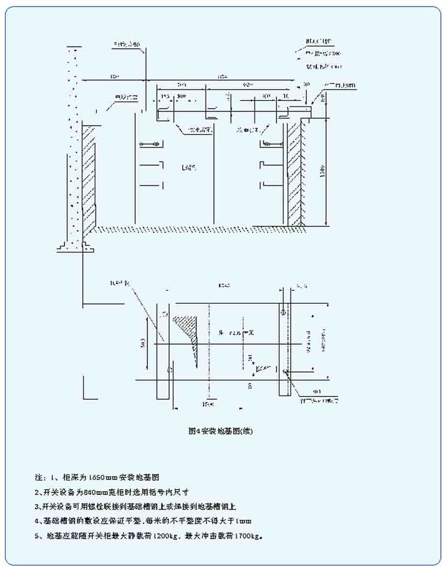
Cabinet for the whole assembly type structure (see Figure 1), the tank with the suspension midship structure (see Figure 2). According to the needs of the user can be provide floor type handcart scheme.
It can be equipped with imported 3AF, vacuum circuit breaker and other 3AH models, and the national ZN28, ZN65, ZN12 series vacuum circuit breaker.
Can be arranged in parallel with KYN18-10 (F-C).
The equipment can be installed on the wall, cabinet maintenance.
Machining accuracy of machine tools to protect the assembly quality of the Cabinet car, hand car interchangeable.
Financial propulsion, interlocking in a transmission system, interlocking and reliable, the operation is very simple.
The operation of all equipment, including the truck in the cabinet are moving with the door closed state.
The compartments are sheathed in isolation and grounding, protection class IP3X.
Vacuum circuit breaker and its supporting operating mechanism in high pressure chamber only need a few maintenance.
The cable chamber can provide ample space for making the cable head.
4 cabinet for the whole assembly type structure
5 outline dimensions
6 main circuit diagram








7 ordering instructions
The following information should be provided when ordering:
9.1 main circuit schematic, layout.
Two 9.2 schematic diagram of the terminal, the terminal arrangement, if the terminal layout of the manufacturers in accordance with the manufacturers terminal layout.
9.3 switch device type, size, quantity of electrical components.
9.4 bus bridge (two column cabinet and bus bridge between StorWall bus bridge) is required to provide the span and height dimensions.
9.5 switching equipment used in special circumstances should be put forward when ordering.
9.6 the type and quantity of the required other or beyond the specified attachment shall be presented.



