Main use of products
XGN17-40.5 box type fixed AC metal closed switch equipment is according to the closure of the GB 3906-2020《Alternating-current metal-enclosed switchgear and controlgear for rated voltages from 3.6 kV to 40.5 kV》and IEC 62271-200《High-voltage switchgear and controlgear – Part 200: Alternating-current metal-enclosed switchgear and controlgear for rated voltages above 1 kV and up to and including 52 kV》 design. Its shell with IP2X protection grade of the provisions of the GB4208-93. The switch equipment of the three-phase AC 50Hz single bus and single busbar with bypass system of indoor complete equipment, as the acceptance and distribution of 35kV electrical network can also be used.
Composition and meaning of product model
Main data table






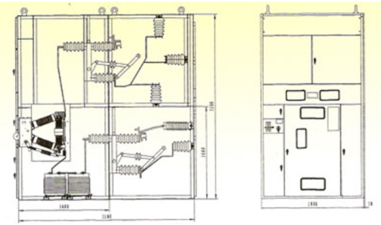
XGN17-40.5KV switch cabinet is fixed connected and assembled structure, the basic skeleton steel and steel plate bending parts by welding and, the cabinet body shell with IP2X level of protection.
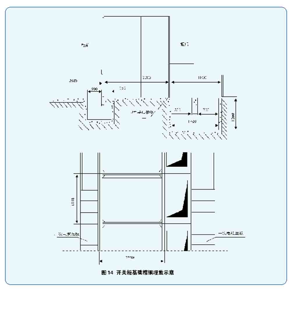
Mainly by the cabinet and the cabinet after assembly and made the switch equipment, uses a different set corresponding to a functional unit, cabinet between the charged body were to air insulation for the main, between the charged body and the relative between the insulation distance of not less than 300mm, internal structure see Figure 1.
1, front cabinet
Before the cabinet set up main busbar and busbar disconnector chamber, the circuit breaker chamber, the relay room, main busbar and busbar disconnector chamber at the top of the cabinet, the circuit breaker room arranged at the bottom of the cabinet, the chamber is also provided with a current mutual inductor, two rooms have insulation plates separated by bus sleeve is connected.
Relay settings in the cabinet is the front of the middle, small bus terminal 15 day, and a second cable channel, terminal room located in the left door, can install JH10 terminals more than 80, at the bottom of the chamber is also provided M12 connection bolt for auxiliary circuit connected to use, the right door maintenance channel. Above a terminal chamber into the operator panel, installed in the auxiliary switch.
2, after the cabinet
After the cabinet bolts with a cabinet is connected, the cabinet bypass bus and isolating switch can be set according to the need of overhead line and also by the cabinet by, set the bypass bus, overhead line and did not reach high security, need to add a small attached or obscuration network. Set next to the mother, overhead when the outlet can be from the top of the cabinet through. The cabinet can also installation of voltage transformers or surge arresters, contact generatrix and cable outlets installed in the cabinet. Bolt is fixed on the back door, if charged monitor prompt no electricity, open the back door, the host generatrix room and cabinet separator separated.
Primary circuit scheme



Order notice
The following information is provided to the user when ordering:
1, a line number and a system diagram, and indicates its rated current.
Two, 2 circuit diagram, such as the application of GG-1A type high voltage cabinet of the 129 kinds of DC operation standard scheme (Z1~Z129) should be marked with the program and control circuit voltage value.
3, high voltage cabinet plane arrangement chart.
4, such as the choice of a non - standard solution, please put forward in order to solve the problem.
5, bus specification by order, if not put in the cabinet support bus according to the standard of factory production of aluminum.
6, switch cabinet paint color.



