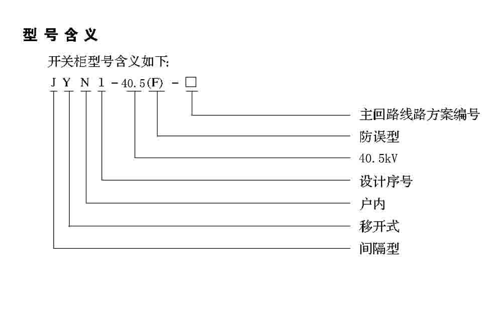
JYN1-40.5KV switch cabinet series three-phase AC 50Hz single parent system, a set of indoor unit, for receiving and distribution of 35kV network circuit with. This type of switch cabinet has to prevent misoperation circuit breaker, prevent loaded a handcart, prevent charged hang ground, prevent take ground transmission, to prevent mistakenly charged interval (hereinafter referred to as the "five anti"). The cabinet can be with Zn] - 40.5 double fracture of vacuum circuit breaker and ZN23-40.5 single fracture of vacuum circuit breaker and circuit breaker.
This equipment complies with the national standard GB 3906-2020《Alternating-current metal-enclosed switchgear and controlgear for rated voltages from 3.6 kV to 40.5 kV》and IEC 62271-200《High-voltage switchgear and controlgear – Part 200: Alternating-current metal-enclosed switchgear and controlgear for rated voltages above 1 kV and up to and including 52 kV》
Working conditions
1 altitude is not higher than 1000m.
2 ambient air temperature is not higher than +40, the minimum temperature is not lower than -15, the daily temperature difference is not greater than 15;
3 relative humidity is not more than 90% (+25 C);
4 there is no fire, explosion hazards, serious pollution, chemical corrosion, and the violent vibration of the place.
Note: environmental conditions beyond the above requirements, the user and the manufacturer consultation.















Main wiring diagram










