ZGS11.ZGS13 substation is Shanghai Nike Ju launched the American box changed. The localization of landscaping products as an important power supply unit of cable distribution network, set pressure control, protection, substation, and distribution equipment in one of the sets of pre products, widely used in urban and rural distribution network. The products will be placed in the high voltage load switch, transformer oil high voltage fuse box, with two kinds of structures with the transformer body or total box. The tank adopts fully sealed structure, equipped with oil temperature gauge, oil level gauge, pressure gauge, pressure release valve, oil discharge valve and other components to monitor the operation status of transformer. The product is divided into ring type, terminal type and double the power type power supply. In order to make the actual requirements of this product is more suitable for China's power grid, the company has launched a plug type fuse, fuse the fuse does not affect the performance of transformer oil. According to the requirements of the low voltage feeder complex Miscellaneous degree, NJYB27 type products are divided into standard type, enhanced and integrated three types of shell, the user and design units in the selection, so that more flexible and more economical.
1 models and their implications
2 use the environment
Ambient temperature: the maximum temperature of +40 degrees Celsius, the minimum temperature of -30;
Altitude: 1000m;
Wind speed: quite 34m/s (no more than 700Pa);
Temperature: daily average relative humidity is not more than 95%,
Monthly average humidity is not more than 95%;
Earthquake: the level of acceleration is not greater than 0.4m/S2, vertical acceleration is not greater than 0.15m/S2;
Installation site inclination: no more than 3;
Installation environment: the surrounding air is not corrosive, flammable gases, such as obvious pollution, the installation site without violent vibration;
Order this product beyond the provisions of the above conditions, can be negotiated with the company.
3 main circuit diagram
4 outline dimension chart
5YB27 standard size
6
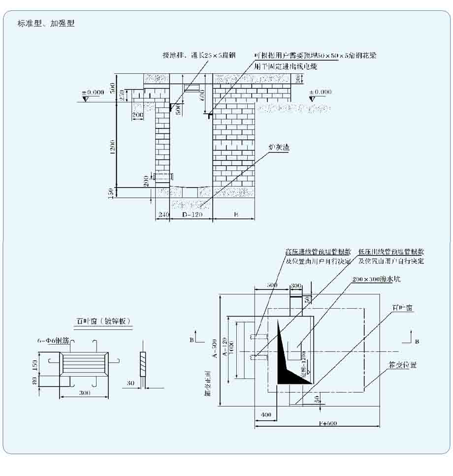
7 standard type, reinforced foundation construction requirements
Basic application requirements 100kPa above.
Based in the Highlands, around outside the drainage, the red brick cement mortar masonry, outside the walls with 1:2 cement mortar wipe 20mm thick, added 3% waterproofing agent.
Cable chamber bottom surface to the water collecting pipe side slightly inclined, so as not to water.
In the blind side of the window, 150 * 300 steel net (20 * 10) diamond shaped eyes, the window frame welding rib embedded in the wall.
The foundation construction shall conform to the JGJ16-83< building electrical design technical specification > the relevant regulations.
Ground lines and the ends of the earth will have the usual as, ground lines from cable trench lead can be along the ring network cabinet layout around, but also from a side extension arrangement for grounding, grounding resistance is less than or equal to 4 ohm.
The size of the figure is recommended.
For the convenience of the line users can according to the actual situation of the field in three or four directional equipment cable wells.
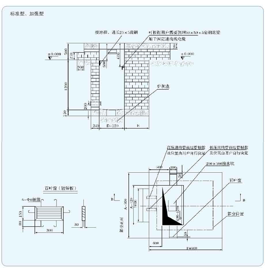
8 comprehensive chart
9 basic construction requirements
Basic application requirements 100kPa above.
Based in the Highlands, around outside the drainage, the red brick cement mortar masonry, outside the walls with 1:2 cement mortar wipe 20mm thick, added 3% waterproofing agent.
Cable chamber bottom surface to the water collecting pipe side slightly inclined, so as not to water.
In the blind side of the window, 150 * 300 steel net (20 * 10) diamond shaped eyes, the window frame welding rib embedded in the wall.
The foundation construction shall conform to the JGJ16-83< building electrical design technical specification > the relevant regulations.
Ground lines and the ends of the earth will have the usual as, ground lines from cable trench lead can be along the ring network cabinet layout around, but also from a side extension arrangement for grounding, grounding resistance is less than or equal to 4 ohm.
The size of the figure is recommended.
The bottom plate in the original layer, if not the original layer, should take measures to reinforce the original soil.
10 ordering instructions
The following information is required for the user to order:
1 model, capacity, quantity, color.
2 is the standard product, or non-standard products (who do not meet the high and low voltage electrical plan of the product, Nike Ju electrical products, are regarded as non-standard products).
3 transformer performance model, connection group, sub range
4 ring network or terminal, the cable head type, into the cable model section, whether with lightning arrester, whether with a fault indicator and a live indicator.
5. Low number of the solution, low-voltage circuit breaker type specifications. Requirements such as low voltage metering, whether for individually sealed, low-voltage transformer models and accuracy requirements, active power, no work table, reactive or comprehensive test instrument, electronic table model specification requirements.



